室町時代から受け継がれる「豊田小原和紙」をディスプレイに採用したキッチンを開発
高級戸建メーカー×オーダーキッチンメーカー×伝統工芸作家による3社のコラボレーションで実現
諸戸の家株式会社(本社:三重県桑名市、代表取締役 松本浩二、以下「諸戸の家」)は名古屋市千種区で高級戸建分譲「SUPER LUXURY 東山公園の邸宅」を発売しました。日本の伝統美術工芸の新たな挑戦となる、世界初のオリジナルキッチンを擁しています。

本邸宅は企画設計の段階から、豊田小原和紙工芸作家の加藤英治氏(小原和紙工房 蓬莱館、以下「加藤氏」)と、愛知県弥富市のオーダーメイドキッチンブランド「CARRARA/カラーラ」(株式会社ユキ・コーポレーション、代表取締役 長谷川茂行、以下「CARRARA」)が参加し、手漉きの豊田小原和紙をL字型ディスプレイに大胆に取り入れたオリジナルキッチンを実現しました。時代を超えて継承されてきた名工の技術を居住空間で味わえる贅沢な物件です。
前例のない「和紙アート作品×モダンキッチン」の開発秘話


諸戸の家株式会社と「CARRARA」は15年以上にわたり、高級戸建にふさわしいデザインと品質を兼ね備えたオリジナルキッチンを提案してきました。
「東山公園の邸宅」のキッチンのアイデアは2024年2月。諸戸の家の常務取締役でありレジデンスプロデューサーの西田研二が、CARRARAのゼネラルマネージャーの長谷川大祐氏に「キッチンに和紙を取り入れられないか」と相談して生まれました。西田は直前に異業種交流会で加藤氏と出会っており、豊田小原和紙の手漉きの技術や、光を透過させることで表情を変えるデザインに魅力を感じていました。

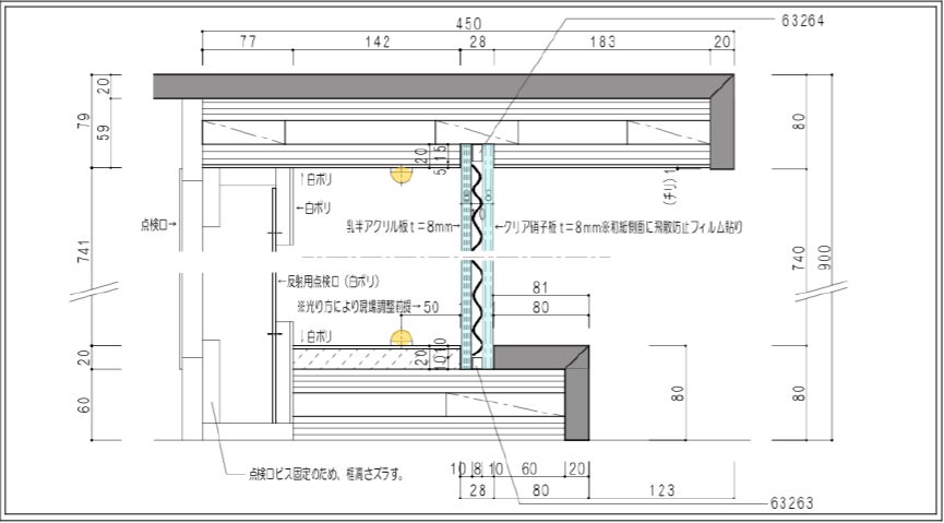
ただし水場であるキッチンに和紙素材を用いることは前例がなく、アート作品をインテリアに取り入れるという試みも初の試みでした。CARRARAの長谷川氏は、海外の「オニックス」と呼ばれる天然石に光を透過させる技術を参考に、2枚の厚いガラス板に豊田小原和紙を挟み、光を後ろから当てる手法を採用。試作と実験を2ヶ月にわたり繰り返し、完成に至りました。
コロナ禍で需要が縮小した豊田小原和紙作家、加藤氏の挑戦

室町時代から受け継がれてきた豊田小原和紙は、結婚式の引き出物やイベントの景品・記念品などで需要がありましたが、コロナ禍以降その需要は完全に縮小しました。さらに、作家の高齢化や担い手不足も深刻な問題で、作家登録者は16名にまで減少しており、実際に活動している人数はさらに少ないのが現実です。

地元豊田市内での「小原和紙」の認知度も年々低下していく中で、加藤氏は「インテリア和紙」という新たな市場の開拓を試み、ホテルや商業施設に売り込みを図る中で諸戸の家の西田と出会いました。
今回のコラボレーションで実現したオリジナルキッチンは、美術工芸品の枠を超えて建築産業に進出し、「インテリア和紙」として新たな活路を見出す第一歩となります。大量生産には不向きな 「一点モノの価値」を提案していく大きな実績となったと手ごたえを感じています。

住宅高騰の時代におけるオーダーメイドキッチンの役割

不動産・建築資材が高騰し市場が冷え込む中、オーダーメイドキッチン業界は活況を呈しています。CARRARAの長谷川氏は顧客が他と同じではない生活を求め始めており、 「キッチンだけは妥協したくない」との声が多く、掃除楽々・収納たっぷりといったこれまで主流だった機能美を追求したキッチンデザインは飽和状態にあると述べています。

海外の最新トレンドを取り入れてきたCARRARAにとっても、「日本の伝統工芸技術をキッチンに取り入れる」という今回の試みは初のことであり、その可能性とサステナビリティ性が今の時代にマッチしていると考えています。(以下、長谷川氏談)
「まず大量生産のキッチンメーカーには出せないデザインが気に入っています。日本の空間美に調和したデザインに見事にはまっています。また我々のキッチンを通じて日本の伝統工芸の認知度向上に貢献できるのは、モノづくりに携わる者として強い意義を感じます。」
「今回のキッチンはアート作品としての価値があり、価値の低下が見込まれません。CARRARAのキッチンは元々、引っ越しに耐えられるほどの強度を持って設計されており、長い間使われることを前提にしているので、10~20年がキッチンリフォームの目安とされる日本のキッチン製品よりもサステナブルだと言えます。」
伝統と革新を取り入れる「SUPER LUXURY」の展望

諸戸の家が提案する高級戸建分譲『SUPER LUXURY』は、「30年後も価値が下がらないヴィンテージとなりうる住宅」をコンセプトとしています。「東山公園の邸宅」はキッチンのみならず、外観・インテリア・外構まで徹底的に工夫を凝らした住まいです。
今後も日本各地の伝統美術工芸を居住空間に贅沢に取り入れ、諸戸の家によってこれらの価値や需要が業界内に高まるような提案を行ってまいります。いずれは海外市場においても『諸戸の家のSUPER LUXURY』がブランドとして認知される存在を目指します。

企業概要
会社名:諸戸の家 株式会社
設立:昭和50年6月16日
業務内容:分譲住宅(自社設計・自社施工)
役員:代表取締役 松本 浩二
本社TEL:0594-25-3215
お問い合わせ
諸戸の家株式会社 広報担当 横山
メール:a.yokoyama@moroto-ie.com
電話:0594-25-3215